一覧に戻る

川越市的場3期 中古戸建 成約済み

 2026年03月07日時点

成約済み

外観写真

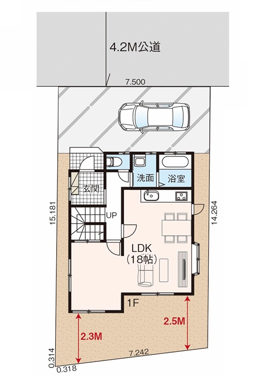
1F間取り図

2F間取り図

価格 ---万円
住所・最寄り駅 川越市的場
JR川越線 的場駅 徒歩17分
間取り/間取り詳細 3LDK  LDK18帖 / 洋室6帖 / 洋室6帖 / 洋室5.25帖 築年月 1998年1月
建物面積/土地面積 87.77㎡/110.5㎡ 階数 地上2階

川越市的場3期 中古戸建 成約済みのPRポイント


設備・条件

  • トイレ2か所

  • 照明器具付き

  • リビングダイニング15畳以上

  • 対面キッチン

  • バス・トイレ別

  • 独立洗面台

  • バルコニー

  • クローゼットシューズボックス

  • フローリング

川越市的場3期 中古戸建 成約済みの物件概要

住所 川越市的場
交通機関 JR川越線 的場駅 徒歩17分
間取り/間取り詳細 3LDK / LDK18帖 / 洋室6帖 / 洋室6帖 / 洋室5.25帖
建物面積 87.77㎡ 土地面積 110.5㎡
計測方法
主要採光面 建物構造 木造
都市計画 市街化区域
階数 地上2階 築年月 1998年1月
築年月備考
設備・条件 トイレ2か所/照明器具付き/リビングダイニング15畳以上/対面キッチン/バス・トイレ別/独立洗面台/バルコニー/クローゼットシューズボックス/フローリング/
水道 公営水道、本下水 ガス 都市ガス
土地権利 所有権のみ セットバック
接道状況 一方
接道1 北西側 公道 幅員4.2m
地目 宅地 用途地域 第一種低層住居専用地域
建ぺい率 50% 容積率 80%
引渡 相談 地勢
現況 空家 国土法届出
取引形態 仲介 物件管理コード 2025102606
備考・特記事項 電波障害等によるケーブルTV、共聴アンテナの申込はお客様負担となります。
図面と現況に相違がある場合は、現況優先とします。
問い合わせ先 東上住宅 株式会社 電話番号 049-250-5555
建築確認番号